网站首页 企业概况 新闻中心 产品中心 技术中心 工程案例 人才招聘 联系我们 访客留言
 您现在的位置:淮海型材->产品中心
产品中心
80推拉系列
80防水推拉系列
60平开窗系列
60平开门系列
88推拉系列
95推拉系列
ASA/PVC双色共挤系列
60推拉系列
塑胶共挤系列
70平开三密封系列
92推拉系列
65平开系列
标准化外窗附框
双面覆膜型材
 
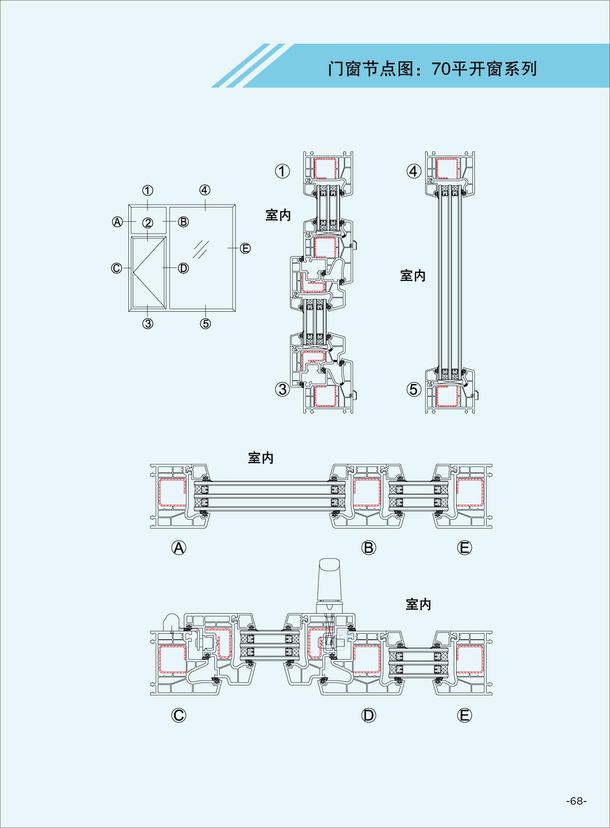
70平开三密封系列

       淮海70三密封系列型材,是公司配合国家节能环保政策及江苏省最新建筑外窗标准而特别设计开发的新产品,70型材采取大壁厚、三密封结构,可配套安装双层玻璃或三层玻璃,成品窗水密性能达500pa以上;气密性能达0.5m3/m.k以下,抗风压性能可达8级;框型材传热系数为1.4,整窗传热系数最低可达1.6。 

 

 

 

 

 

 

 

 
淮海型材版权所有 苏ICP备 13009440号 Copyright 2014
公司地址:江苏省淮安市淮阴区嫩江路188号 网站管理
电话:0517-83803333 86215666 传真:0517-83804444 83803777